MENU

  • フレスポ三次プラザ

    広島県三次市十日市中一丁目1-10

※初めてご利用される施設の場合は、必ずご予約前に上記のお問合せ先へのご連絡と現地確認を行って頂いたうえでご予約下さい。
  • |広島県三次市十日市中一丁目1-10
  • 施設情報
    駐車台数:
    テナント構成
    スペース数
    屋外:3 半屋外:1
    管理運営会社
    大和リース
    備考
    業種によって出店料が異なりますので、事前にご相談ください。
    原則、備品機器等は都度お持ち帰りください。(保管場所ありません)
施設ウェブサイト
施設情報
駐車台数:
テナント構成
スペース数
屋外:3 半屋外:1
管理運営会社
大和リース
備考
業種によって出店料が異なりますので、事前にご相談ください。
原則、備品機器等は都度お持ち帰りください。(保管場所ありません)
  1. 0

    屋外 16.53 ㎡ 電源有(要相談) 詳細を見る

  2. 0

    屋外 33.06 ㎡ 電源有(要相談) 詳細を見る

  3. 1

    半屋外 16.53 ㎡ 電源有 詳細を見る

  4. 2

    屋外 39.67 ㎡ 電源有 詳細を見る

0屋外

  • no image
  • 場所:
    マルシェ専用スペース(予備)
    広さ:
    16.53㎡(5坪)
    電源:
    有(要相談)
    保管場所:
    無(要相談)
    ご利用頂け
    ない業種:

    なし

    給排水:
    備考:

0屋外

  • no image
  • 場所:
    マルシェ専用スペース
    広さ:
    33.06㎡(10坪)
    電源:
    有(要相談)
    保管場所:
    無(要相談)
    ご利用頂け
    ない業種:

    なし

    給排水:
    備考:
    こちらはマルシェ出店専用スペースです。
    マルシェ以外の業態の方はお申込みできませんのでご注意ください。
    電源使用時は、必ず配線養生を行い転倒防止策を取ってください。

1半屋外

  • |フレスポ三次プラザ |フレスポ三次プラザ |フレスポ三次プラザ
  • 場所:
    フレスポ広場(センターコート)
    広さ:
    16.53㎡(5坪)
    電源:
    保管場所:
    ご利用頂け
    ない業種:
    相談・買取査定 / 買取査定
    給排水:
    備考:
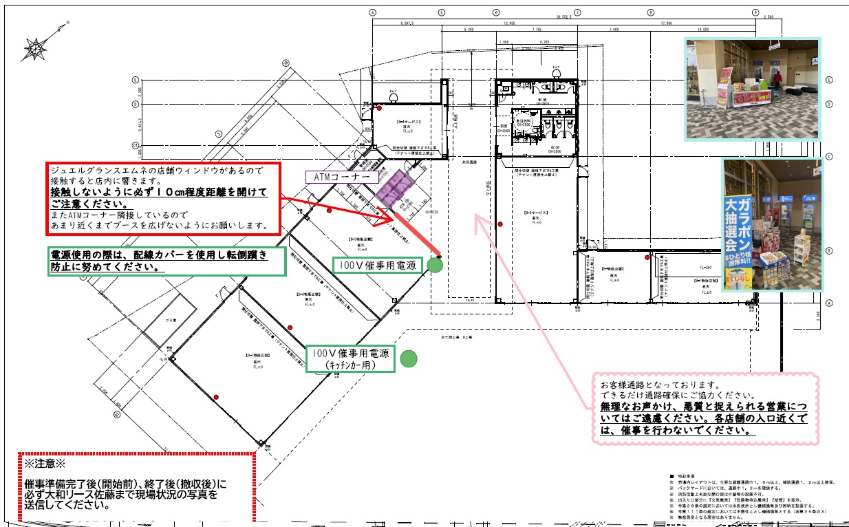
    ※常駐不在施設となりますので、設営後・撤収後状況写真のメール共有をお願いしております※
    ※運用ルールがございますので、予約いただきましたら施設担当者へ連絡の上、ガイドライン共有をお願いいたします※
    ※資材残置や保管スペースはございませんのでご理解ください。※

2屋外

  • |フレスポ三次プラザ |フレスポ三次プラザ
  • 場所:
    フレスポ広場前駐車場
    広さ:
    39.67㎡(12坪)
    電源:
    保管場所:
    ご利用頂け
    ない業種:
    相談・買取査定 / 買取査定
    給排水:
    備考:
    ※運用ルールがございますので担当者へ連絡をお願いいたします※

    ※資材残置や保管スペースはございません※



    ※駐車場内スペースとなります。

    ※基本的にキッチンカー等車両を利用した催事をお願いします。

    ※前日にカラーコーンでの車両スペース確保をお願いいたします。



    ※※センターコート前駐車場(軽含む)を利用した催事スペースですが、区画確保についてはカラーコーンを貸出いたしますので、前日夜もしくは当日朝にて各自確保をお願いしております。ご了承ください。※※

現地地図